47

Property Description

Ever dream of living in Eldorado Springs? Now is your chance! Live amongst the treetops and the towering cliff walls at the entrance to Eldorado Canyon. Be inspired by the soaring 17-foot ceilings and hand-crafted timber frame. Marvel at views from every window of the canyon, sweeping meadows and majestic landscape. Be immersed in privacy and nature, as the home is situated 300 feet from the road on a verdant hillside, soothed by the sounds of S. Boulder Creek and bird song. Custom built in 2018 with an emphasis on sustainability and energy efficiency including a robust 5-kW solar system. The integration of natural materials underscores the home's harmonious relationship with its environment. The warm ambiance is complemented by a woodstove and a heat pump for temperature extremes. The chef's kitchen is equipped with soapstone counters, mahogany cabinetry, premium appliances, and a walk-in pantry. With 3 spacious bedrooms, 2 baths, and a versatile studio that can serve as a 4th bedroom

General Features

MLS: 1049603Status: Active
Listing Office: Compass - BoulderListing Office Phone: 303-487-5472
Style: TwoConstruction: Wood/Frame,Metal Siding,Wood Siding
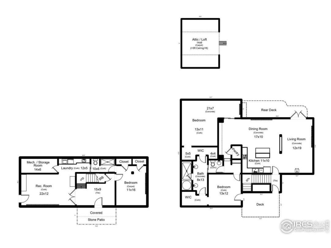
Bedrooms: 3Baths: 2
Cooling: Wall/Window Unit(s),Ceiling Fan(s)Heating: Baseboard,Wood Stove,Zoned Heat,Wall Furnace
Total SqFt: 2,694ft²Finished SqFt: 2,694ft²
Above Ground SqFt: 2,694ft²Acreage: 1.16 acres
Lot Size: 50,486ft²

Room Sizes

Dining Room: 10ft x 17ftLaundry Room: 5ft x 12ft
Kitchen: 10ft x 11ftLiving Room: 19ft x 22ft
Rec Room: 12ft x 22ftMaster Bedroom: 11ft x 13ft
Bedroom 2: 12ft x 13ftBedroom 3: 16ft x 11ft

School Information

District: Boulder Valley Dist RE2
Elementary: Mesa
Middle: Southern Hills
High: Fairview

Taxes & Fees

Tax Amount: $10,315
Tax Year: 2024

Additional Information

Fireplaces: Free Standing,Great Room
Horse Property: 1
Outdoor Features: Patio,Deck, , , Storage, Fire Hydrant within 500 Feet, Level, Sloped, Rock Outcropping, Abuts Ditch
New Financing: Cash,Conventional,FHA,VA Loan
Construction: Wood/Frame,Metal Siding,Wood Siding
Energy Features: Trombe Wall,Southern Exposure, Window Coverings, Sunroom, Triple Pane Windows
Utilities: Electricity Available
Property Database Last Updated: February 8th 2026 12:52 PM

IDX Source Information source: Information and Real Estate Services, LLC. Provided for limited non-commercial use only under IRES Rules. © Copyright IRES. Information provided exclusively for consumers' personal, non-commercial use and may not be used for any purpose other than to identify prospective properties. Information deemed reliable but not guaranteed by the MLS.